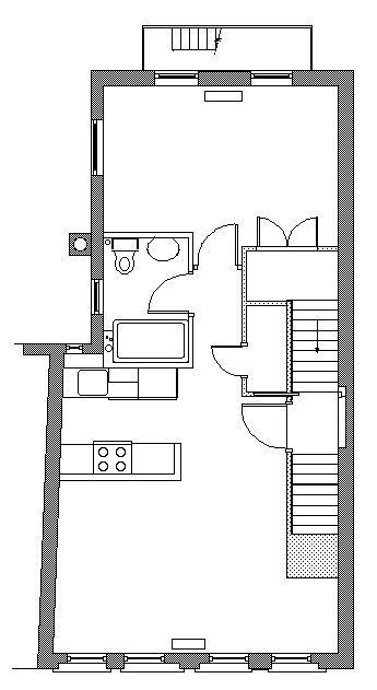
1 Bedroom floor through apartment

 

South facing windows

 

 

 

open plan kitchen

 

 

 

Apartment plan

 

Tenants have access to garden

 

 

 

Washer and dryer in adjacent basement

 

 

Apartment features:

700 sq. ft. second floor of recently renovated building perfect for couple
4 south facing windows in living room
open plan kitchen with dishwasher
west and north facing windows in bedroom
high ceilings
wood moldings, built-in book case
excellent closet space
access to garden and laundry
private hot water
great food, clubs, art in neighborhood
walk to Bedford L stop
no smoking
includes heat

 

 

Back to home page